洗沙撈坑提升機
撈坑提升機分為撈坑式提升機和脫水式提升機,撈坑斗式提升機用于從撈坑沉淀池中提升大顆粒精煤和細粒煤,并使物料在提升過程中自行脫水、脫水式提升機主要用于洗煤廠對跳汰洗選后的中煤或矸石提升運輸和脫水。

撈坑斗式提升機工作原理
適用于提升洗滌后的中煤、矸石和冷卻后的鈣鎂磷肥,也適用輸送洗滌后的其他塊狀或顆粒狀的物料,物料在提升輸送過程中,可在重力作用下自行脫水。對于大塊物料及水分要求不太嚴格的產品,如跳汰分選作業的中煤、矸石可用脫水斗式提升機直接作為最終脫水設備。對粒度較細、或脫水不太容易、水分又要求比較嚴格的產品,脫水斗式提升機可作為初步脫水設備。如粗煤泥回收作業中,撈坑沉淀的煤泥可先經脫水斗式提升機初步脫水,再進一步用脫水篩和離心脫水機作最終脫水。

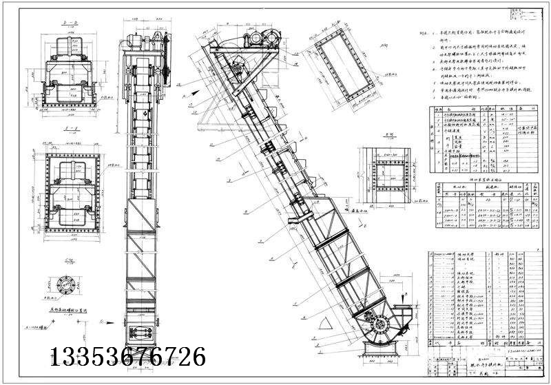
撈坑脫水鏈斗提升機產品結構:
(1)撈坑脫水鏈斗提升機的驅動裝置包括電動機、減速機、傳動鏈及鏈輪。電動機和減速器之間用彈性注銷聯柱器聯接,減速器和傳動主軸之間用套筒滾子鏈傳動,鏈條的張緊靠壓緊鏈輪調節,考慮到斗鏈有可能突然被卡住而發生事故,在從動鏈輪上裝有安全銷。驅動裝置安裝在傳動支架上,傳動支架焊在頭部節段上;
(2)頭部組件由傳動部件及拉緊裝置組成,該組件包括星輪、傳動主軸、軸承及頂緊螺桿等。星輪為四(五)方形,軸承座的底部帶有燕尾槽,軸承借助螺桿來調節斗鏈的松緊;
(3)機體由頭部節段、中間節段(敞開節段、過渡節段、密封節段)和尾部節段組成,節段均為金屬焊接結構,各節段之間用角鋼法蘭聯接。為防止漏水,在聯接處墊有5mm厚的橡膠墊。頭部節段除設有卸料口外,還有為安裝拉緊裝置的槽鋼,中間節段中用于水下得封閉箱形結構,稱為封閉節段:用于水上的U形槽,稱為敞開節段:過渡節段用于上述兩種節段之間,為了防止斗鏈下垂,在中間節段內鋪設有由角鋼和扁鋼組成的導軌。尾部節段也為封閉的箱形結構,其上設有喂料口、上排水管、下放水孔和專為檢修用得清掃孔;
(4)尾部組件包括尾輪、滾輪、鍵及軸承。滾輪有兩個,均為圓形,其中一個用鍵固定在軸上,另一個空套在軸上,以補償兩排斗鏈由于不均勻摩擦與伸長而造成的在總長度上的差異。為防止尾部軸軸頸的磨損,在其上配置了兩個可以更換的鋼套。軸承的襯套用耐磨鑄鐵制成,其內緣用特制的膠質密封圈,以防止泥水侵入;
(5)斗鏈由兩條鏈條和斗子組成。鏈條為片式牽引鏈,斗子用鋼板制成,斗子上交錯排列著脫水用得長孔,并用帶榫的沉頭螺栓間隔地(間隔一個節距)安裝在鏈條上;
(6)捕捉器的作用是當斗提機斷鏈時,防止斗鏈拋出及落入機尾部。捕捉器焊接在敞開節段兩側導軌上,上面一對捕捉器安設在離傳動軸中心不超過3m處:下面一對捕捉器安設在敞開段和過渡段接鄰之間:中間捕捉器之間的距離應不大于5m,并且不等于鏈條節距的倍數;
(7)頭、中間、尾部支架及檢查傳動系統用得梯子,均為焊接的金屬構件,分別支承在樓板及基礎上。
撈坑斗式提升機使用維護
提升機安裝后要進行1-2小時無負荷試車,試車時檢查斗鏈運行情況,斗子兩側牽引鏈運轉平穩,料斗無歪斜,減速器無過激響聲,電氣控制正常。
運行部分和其它固定部分沒有任何卡碰現象發生,以上滿意后才能進行負載試車。
如在使用過程中遇有故障切斷安全銷,應按原來的安全銷材料和尺寸配制,不能任意代用。
減速器油池潤滑的油面高度,規定為比內齒輪齒頂高2-3倍的模數,潤滑油用(HL20或HL30)齒輪油。
該提升機機器起動前應檢查各個緊固件是否牢固,頭部組件軸承處注以潤滑油,傳動鏈應接觸正常,防護罩安裝良好。
特別需要注意的不能帶負載起動,行車前不供料,街卸料完畢后停車。
拉緊裝置絲杠表面上和軸承內應有潤滑脂,以防止銹蝕。
減速器的潤滑油按24小時連續工作制計算每3個月必須更換一次,減速器的傳動件應半年內檢修一次。
斗鏈用銷子聯接處應轉動靈活,應經常注意滾輪軌運行情況。滾輪移動自如和套筒接觸面無滯死現象
河南鵬威機械設備有限公司專業生產各種通用設備,振動設備商家
訂購網址請登錄河南鵬威機械有限公司官方網站:m.hzjwcp.com 24小時服務熱線:13353676726